夢のマイホーム。
「いつかは…」と思いながら、夢はどんどん膨らみ「こんな家に住みたいな♡」「こんな機能があったら嬉しい♡」という希望が増えていくばかりで、悩んでいませんか?
家族みんなが快適な家に住みたい。
収納の多さは譲れないし、子どものことを考えると小学校が近い方がいいなあ…
ママスキー編集部/
おまかせください!
電鉄黒部駅まで車で4分!周辺環境も充実のモデルハウスをご紹介します♪
今回モデルハウスをご紹介してくださったのは、株式会社ファースト設計 パパまるハウス事業部さん。販売物件は1,000万円からと、ローコストで高性能な住まいがウリの『パパまるハウス』の富山販売代理店として提案しています。
また、こちらのモデルハウスの最大の魅力ともいえる【全館空調】は、寒い今の時期にこそ!!ぜひ体感してほしいんです☆
そんな【全館空調】の魅力をたっぷりお伝えしつつ、モデルハウスの詳細も紹介していきますね!では、早速見ていきましょう♪
物件詳細
◎黒部市前沢北分譲住宅②
◎4LDK(和6/洋 8.5・6・6/LDK16帖)
◎土地面積220.18m²(66.6坪)/建物面積109.30m²(33.06坪)
◎販売価格
2,960万円(税込)
今回ご紹介する物件は、新しい分譲地内にある、2階建て4LDKです!
閑静な住宅地ながら、幹線道路まですぐという好立地。主に車移動の富山県民にとっては嬉しいですよね♪
さらに販売価格が2,960万円というのにも驚きです!!!物価高のこの時代にこの価格でマイホームが手に入るなんて…!!
この価格設定もこのモデルハウスの魅力の1つなのではないでしょうか♡
そして、気になる周辺環境はこちらです↓
保育園、学校
- 前沢保育所
距離:1,300m - 黒部市立桜井小学校
距離:400m
スーパー、ドラッグストア
- アルビス黒部店
距離:450m - ショッピングセンターメルシー
距離:950m - ドラッグストアコスモス 牧野店
距離:900m
コンビニ
- セブン-イレブン 黒部三日市店
距離:540m
その他
- 黒部市役所
距離:800m - 黒部市民病院
距離:1,800m
ママスキー編集部/
小学校やスーパーが近いのも、子育て世代にはありがたいですよね♡
通学距離が短いので登下校の心配が少なく、買い物もサッと済ませられるため、忙しい平日の負担を減らしてくれます。
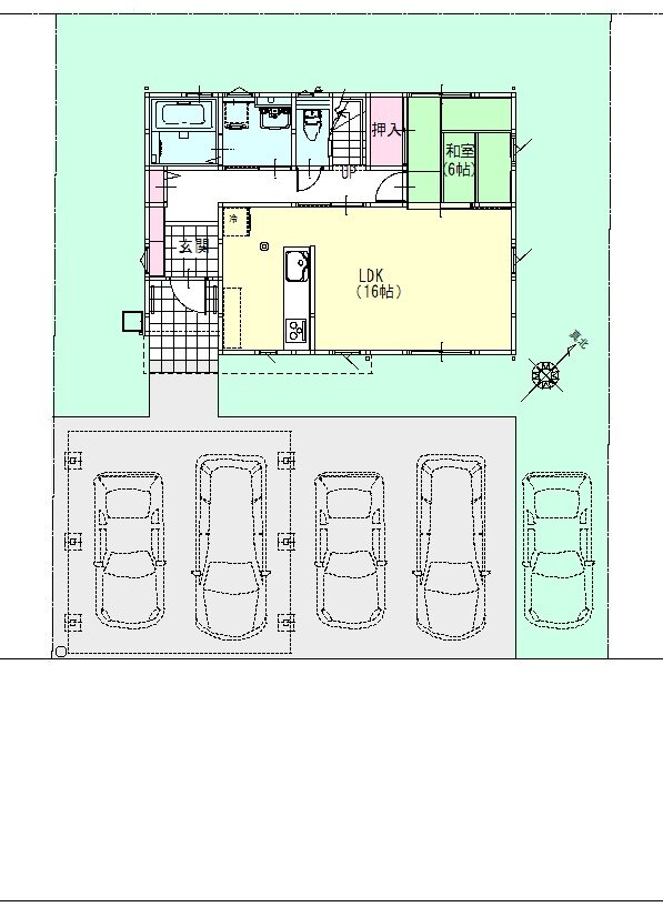
間取り
ピンクの箇所は、すべて収納!
各部屋に収納があることで自然と家の中が整うので、家族みんなが気持ちよく暮らせます。
8帖と広々した屋根裏収納は、固定階段付きなのも嬉しいポイント。
おもちゃや季節物などの収納だけでなく、趣味部屋として使うのも憧れますね♡
1Fは水回りがまとまっており、生活動線も考えられています。
さらに、車はなんと5台まで駐車可能!
カーポートもあるので、雪が降っても安心です。
家中どこでも快適♪
玄関からあたたかい全館空調
この住宅の大きな魅力は、全館空調「Z空調(ぜっくうちょう)」を採用していること!
CMなどで聞いたことのある方も多いのではないでしょうか?この設備のおかげで、リビングはもちろん、廊下や洗面室まで温度差が少なく、夏も冬も一年中快適に過ごせます。
赤ちゃんや小さなお子さんがいる家庭でも、体調管理がしやすいんです♪
Z空調(ゼックウチョウ)とは?
Z空調とは、ヒノキヤグループが独自に開発した全館空調システムです。
一般的なエアコンのように1部屋だけ冷暖房するのではなく、家全体の空気を管理し、玄関〜廊下〜トイレ・脱衣所・寝室まで一年中快適な室温に保つことができます。
これにより、家中の温度差を少なくし、心地よい住環境を実現しています♡
Z空調には第1種換気という機械換気システムがあり、外から取り込む空気を高性能フィルターで清浄化します。
これにより、花粉やホコリなどを抑えつつ、常にきれいで清潔な空気が家全体に循環するという効果が!
また、夏は天井付近から冷たい空気をやさしく循環させる仕組みなので、直接冷たい風が当たらず自然な涼しさを感じられます。
快適な睡眠環境を整えてくれるだけでなく、熱中症リスクを軽減してくれるのも嬉しいですよね。
一方冬は、冷えやすい足元までしっかり暖かくする循環設計で、底冷えを防ぎます。
厚着をしなくても快適に過ごせる空間をつくり、家族みんなが健康的に暮らすことができるんです!
Z空調は、24時間稼働が前提。
そんなに稼働していると、電気代が心配ですよね…。
しかし年間電気代は、なんと夏・冬を通じて合計で月平均10,000円程度!
24時間稼働してこの金額って、すごくないですか??一番安い月は6,000円台というから驚きです!これは、断熱性・気密性が高いため、無駄な冷暖房を減らせる効果によるものでだそうです。
フィルターの掃除も、主なフィルターは数カ所のみで負担が少なく、定期的なケアで長く快適さを保てるよう設計されています。
また、10年延長保証が用意されている点も安心できるポイントです。
ママスキー編集部/
毎日の暮らしをぐっと快適に、健康にも配慮してくれる全館空調システム「Z空調」。
寒い冬でも布団からパッと起きられたり、脱衣所も寒くない生活っていいですよね!それでいて電気代が安いなんて、もうメリットしかありません!
全館空調の魅力については、60秒のショート動画にまとめてみました♪
↓↓↓こちらをチェックしてみて↓↓↓
フォトギャラリー
では、実際の写真を見ていきましょう!
まずは外観。白を基調としたシンプルな外観です。
また、写真からも駐車スペースの広さが感じられますよね♪
ママに嬉しい清潔感のあるキッチンは、
壁面の収納もバッチリです。
お風呂・洗濯機置き場・洗面がつながっているので、動線もスムーズ♪
シンプルな洋室には、窓が2つ。
光が差し込む気持ちのいい空間ですよ♡
リビング横には、6帖の和室があります。
子どものお昼寝や、家族でくつろぐのにいいですね。
見学予約・お問合せ
すぐ近くの黒部市前沢北分譲住宅③もおすすめです。
ぜひ、こちらも一緒に見学してみてください♡
いかがでしたか?
魅力たっぷりのお家ですが、やはり実際に足を運んで、体感していただきたいです!
株式会社ファースト設計では、分譲物件以外に新築注文住宅も承っています。
新築か分譲か、迷っているご家庭にもぴったりですよ♡
株式会社ファースト設計
パパまるハウス事業部
住所/富山市新庄町1-1-1
営業時間/9:00~18:00
定休日/水曜
【建設業者登録】富山県知事(般-28)第13229号、【二級建築士事務所登録】富山県知事第(4)1551号、【宅地建物取引業者登録】富山県知事(5)第2478号
お電話でのお問い合わせ
076-431-7555
